$1,388,888
1,690
SQ FT
$822
SQ/FT
257 San Fernando Way
@ El Dorado - 685 - St. Francis Heights, Daly City
- 3 Bed
- 2 Bath
- 2 Park
- 1,690 sqft
- DALY CITY
-
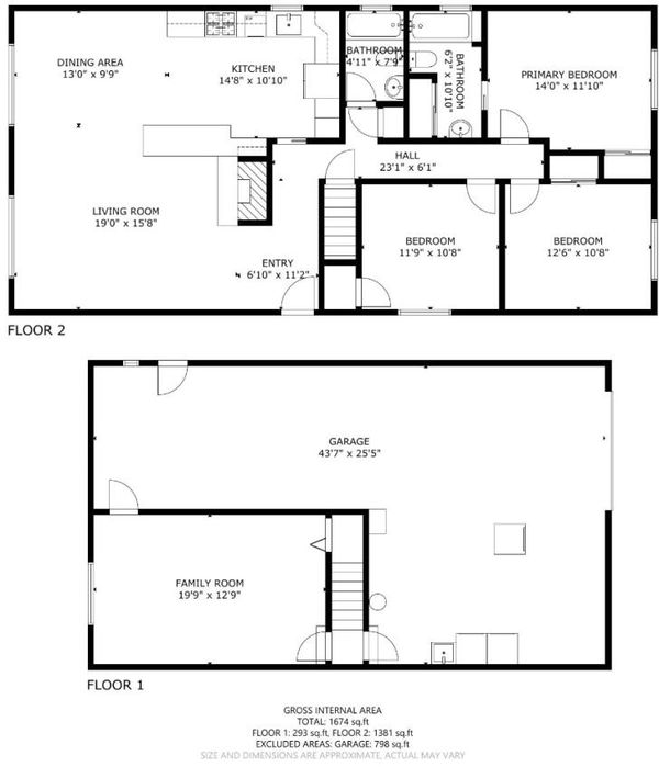
A fabulous home in the highly desirable Saint Francis Heights, offering 1,674 sq ft of thoughtfully upgraded living space Inside, enjoy a remodeled kitchen, dining, and living area with quartzite countertops, new custom cabinetry, brand-new appliances, and stylish tile flooring. Refinished hardwood floors flow throughout, highlighted by a striking granite fireplace and two new bay windows that flood the home with natural light. Modern recessed lighting adds a warm, contemporary ambiance. Take in breathtaking, sweeping views of San Francisco Heights, bringing beauty and serenity to daily life. This prime location is within walking distance to schools, near public transit, and just minutes from Serramonte Shopping Center. With 3 spacious bedrooms and 2 bathrooms with elegant tile, the layout balances comfort and functionality. A 2-car tandem garage provides ample storage or expansion potential, while the low-maintenance exterior features new artificial grass in the front yard and a charming brick-stone backyard perfect for entertaining or relaxing. Thoughtful details like a solid wood front door and numerous upgrades throughout showcase pride of ownership, timeless appeal.
- Days on Market
- 20 days
- Current Status
- Active
- Original Price
- $1,388,888
- List Price
- $1,388,888
- On Market Date
- Dec 12, 2025
- Property Type
- Single Family Home
- Area
- 685 - St. Francis Heights
- Zip Code
- 94015
- MLS ID
- ML82029344
- APN
- 008-271-370
- Year Built
- 1961
- Stories in Building
- 2
- Possession
- Unavailable
- Data Source
- MLSL
- Origin MLS System
- MLSListings, Inc.
Daniel Webster Elementary School
Public K-6 Elementary
Students: 370 Distance: 0.2mi
Hope Lutheran Elementary School
Private K-3 Religious, Nonprofit
Students: NA Distance: 0.3mi
Margaret Pauline Brown Elementary School
Public K-5 Elementary
Students: 314 Distance: 0.3mi
Westmoor High School
Public 9-12 Secondary
Students: 1526 Distance: 0.5mi
Thomas Edison Elementary School
Public K-6 Elementary
Students: 389 Distance: 0.5mi
Fernando Rivera Intermediate School
Public 6-8 Middle
Students: 513 Distance: 0.6mi
- Bed
- 3
- Bath
- 2
- Parking
- 2
- Attached Garage, On Street, Tandem Parking
- SQ FT
- 1,690
- SQ FT Source
- Unavailable
- Lot SQ FT
- 3,300.0
- Lot Acres
- 0.075758 Acres
- Cooling
- None
- Dining Room
- Dining "L"
- Disclosures
- Natural Hazard Disclosure, NHDS Report
- Family Room
- Separate Family Room
- Flooring
- Hardwood, Tile
- Foundation
- Concrete Perimeter and Slab
- Fire Place
- Living Room, Wood Burning
- Heating
- Other
- Fee
- Unavailable
MLS and other Information regarding properties for sale as shown in Theo have been obtained from various sources such as sellers, public records, agents and other third parties. This information may relate to the condition of the property, permitted or unpermitted uses, zoning, square footage, lot size/acreage or other matters affecting value or desirability. Unless otherwise indicated in writing, neither brokers, agents nor Theo have verified, or will verify, such information. If any such information is important to buyer in determining whether to buy, the price to pay or intended use of the property, buyer is urged to conduct their own investigation with qualified professionals, satisfy themselves with respect to that information, and to rely solely on the results of that investigation.
School data provided by GreatSchools. School service boundaries are intended to be used as reference only. To verify enrollment eligibility for a property, contact the school directly.








































